En
Ansicht der schmalen Küchenzeile im Trennmöbel, Blick in den hellen Wohnraum.

Wohnungsumbau und Innenarchitektur

Zeitgeist trifft Altbau

Kunde
privat
Zeitraum
2017
Ort
Budapest, Ungarn
Kategorien
Private Bauten
Nutzfläche
45m²
Fotos

Hanna Haböck

In einem Budapester Altbau aus den 1890er-Jahren verwandelten wir eine kleine Einliegerwohnung in einen funktional durchdachten, offenen Lebensraum. Ursprünglich gliederte sich die Wohnung in Vorzimmer, Küche, Badezimmer mit Badewanne sowie einen nach Westen orientierten Wohnraum.

Für den Umbau entfernten wir sämtliche nichttragenden Trennwände und ersetzten sie durch maßgefertigte, raumtrennende Möbelverbauten. Diese schaffen nicht nur klare Raumstrukturen, sondern bieten gleichzeitig zusätzlichen Stauraum und erweitern die nutzbare Grundfläche.

Das neue Raumkonzept umfasst nun einen kombinierten Vorzimmer- und Küchenbereich, ein WC/Bad mit großzügiger Walk-in-Dusche sowie eine flexible Garderoben- und Abstellzone.
So entstand auf nur 45 m² eine Wohnung, die nicht nur optimal nutzbar, sondern auch erlebbar und in ihrer Nutzung modular ist – hell, offen und mit dem besonderen Charme des historischen Bestands.

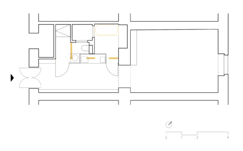
Grundriss der kleinen Wohnung in Budapest mit eingezeichnetem Trennmöbel für Küche und Bad.
  • Grundlagenanalyse
  • Entwurfsplanung
  • Einreichplanung
  • Ausführungs- und Detailplanung
  • Inneneinrichtung
  • Ausschreibung, Angebot, Vergabe
  • Begleitung der Bauausführung
  • Örtliche Bauaufsicht
Detailansicht der in das Trennmöbel integrierten Küchennische mit Waschbecken.
Heller Wohnraum mit Parkettboden, Blick in den Durchgang zur Küche.
Blick vom Wohnzimmer durch die offene Tür zur weißen Küche im Trennmöbel.
Zwei weiße Barhocker vor einer minimalistischen weißen Wand im Wohnbereich.