En
Heller Wartebereich der Zahnklinik mit Sitzmöbeln und großen Fenstern.

Umbau Ordination am Graben

Ein Raum für Präzision und Ästhetik

Kunde
Privatklinik Währing GmbH
Zeitraum
2017 – 2018
Ort
1010 Wien
Kategorien
Öffentliche Bauten
Nutzfläche
280 m²
Fotos

Hanna Haböck

Mit direktem Blick auf die Wiener Pestsäule entstand im Herzen der Innenstadt eine neue Ordination für plastische Chirurgie und Zahnmedizin.
Die Räumlichkeiten befinden sich in einem Gründerzeithaus am Graben, in dem zuvor zwei separate Wohnungen zusammengelegt wurden – zuletzt genutzt als Lagerflächen für Pelzwaren.

Der Umbau erforderte eine präzise Balance zwischen gestalterischem Anspruch und den strengen hygienischen Vorgaben für medizinische Einrichtungen.
Im repräsentativen Haupttrakt zur Straßenseite, mit einer eindrucksvollen Raumhöhe von 4,20 Metern, fanden der großzügige Warteraum sowie mehrere Behandlungsräume Platz.
Die rückwärtigen Bereiche zu den Innenhöfen wurden für funktionale Zonen wie Röntgenraum, Technikflächen und Lager genutzt.

Grundriss der Zahnklinik mit markierten Behandlungsräumen und Funktionszonen.
  • Entwurfsplanung
  • Einreichplanung
  • Ausführungs - und Detailplanung
  • Inneneinrichtung
  • Ausschreibung, Angebot, Vergabe
  • Örtliche Bauaufsicht und Dokumentation
Empfangsbereich der Zahnklinik mit weißem Tresen, Vase mit Blumen und dunkelgrauer Wand im Hintergrund mit goldener Aufschrift „WORSEG“.
Moderne Rezeption mit beleuchtetem Logo „WORSEG“ und großflächigem Porträt einer Frau an der Wand.

Besonderes Augenmerk galt der behutsamen Wiederherstellung historischer Details im Bestand: Alt-Wiener Elemente wurden zeitgemäß interpretiert und in Materialität und Ausführung in die Gegenwart übertragen.

Für das Interieur fiel die Wahl auf Möbel aus der Thonet-Familie – Klassiker, die in neuer Formensprache eine moderne Interpretation des Wiener Kaffeehauses darstellen und so eine Brücke zwischen Tradition und zeitgenössischem Design schlagen.

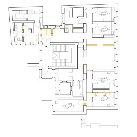
Axonometrische Darstellung eines Grundrisses mit markierten Abbruchbereichen in Gelb und bestehenden Einbaumöbeln wie Regalen und Schränken in Grau.
Wartebereich mit hellen Wänden, großen Fenstern, runden Pendelleuchten und klassischen Thonet-Stühlen.
Detailansicht des Wartebereichs mit rundem Tisch, zwei Thonet-Stühlen und einer eleganten Stehleuchte mit Kugelleuchte.
Sitznische mit gepolsterter Bank in graublauem Stoff, flankiert von einer goldenen Stehleuchte mit Kugelleuchte.
Weiß gestalteter Nebenraum mit Arbeitsflächen und Stauraum.
Zahnärztlicher Behandlungsraum mit technischer Ausstattung und Stauraum.
Behandlungszimmer mit Zahnarztstuhl, großem Fenster und modernem Interieur.