En
Friseursalon mit weißem Empfangstresen, großen Spiegeln, schwarzen Stylingstühlen und warmen Pendelleuchten im klaren Design.

Umbau Friseursalon

von Rohbau zu Feinschnitt

Kunde
AT & NG OG, one of a kind hairstyling
Zeitraum
2017
Ort
1080 Wien
Kategorien
Öffentliche Bauten
Nutzfläche
65m²
Fotos

Hanna Haböck

Im Erdgeschoss eines Gründerzeithauses befand sich einst eine Postkartenlagerhalle – heute erstrahlt der Raum als moderner Friseursalon für one of a kind hairstyling. Durch behutsame architektonische Eingriffe gaben wir den Räumlichkeiten ihre ursprüngliche Form zurück und schufen so wieder einen klar strukturierten Grundriss.

Individuell entworfene Möbeleinbauten fügen sich präzise in die vorhandene Architektur ein und verleihen dem Interieur eine zurückhaltende Eleganz, die den Stil und die Funktion des Friseursalons unterstreicht.

Das Ergebnis ist ein lichtdurchfluteter, offener Raum, in dem Vergangenheit und zeitgenössisches Design harmonisch ineinandergreifen.

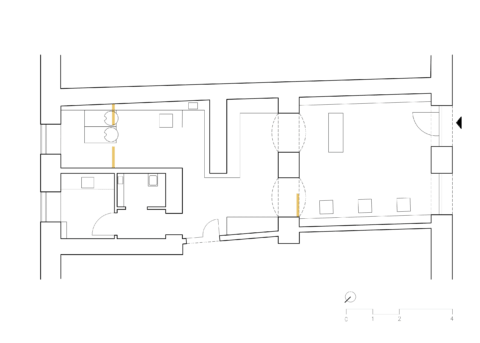
Architektonischer Grundriss eines Friseursalons mit klarer Raumaufteilung, Stylingplätzen, Waschbereich und funktionaler Zonierung.
  • Grundlagenanalyse
  • Entwurfsplanung
  • Ausführungsplanung
  • Ausschreibung, Angebot, Vergabe
  • Örtliche Bauaufsicht und Dokumentation
  • Inneneinrichtung
Heller Friseursalon in Wien mit minimalistischer Innenarchitektur, weißen Einbauten, offenen Rundbögen und modernem Raumkonzept von Atelier Fröhlich.
Weißer Empfangstresen mit Vase und blauen Blumen, drei Pendelleuchten und klarer, heller Raumgestaltung im Friseursalon.

Die Möbel entstanden in enger Zusammenarbeit mit den Auftraggebern – als präzise Antwort auf die Anforderungen des Salonalltags. Ihre Formensprache ist bewusst einfach gehalten, um Funktionalität und klare Abläufe zu unterstützen.

Jedes Element wurde individuell geplant, um sich nahtlos in den Raum einzufügen und die Arbeitsprozesse optimal zu begleiten. Die Reduktion auf das Wesentliche verleiht den Einbauten eine zurückhaltende Präsenz, die den minimalistischen Charakter des Interieurs bewahrt und dennoch Wärme und Präzision ausstrahlt.

Minimalistischer Waschplatz mit industriell gestaltetem Möbel, drei Pendelleuchten und hellem Tageslicht für eine klare, moderne Atmosphäre.
Detailaufnahme mit zwei Waschbecken, Pflanze und Teetassen – moderne, helle Innenarchitektur verbindet Funktionalität mit Wohlfühl-Atmosphäre.