En
HYP W Empfang atelier froehlich

Hypo Tirol Bank – Geschäftsstelle Wien

Private Banking neu gedacht

Kunde
Hypo Tirol Bank AG
Zeitraum
2018 – 2021
Ort
1010 Wien
Kategorien
Öffentliche Bauten
Nutzfläche
1.043m²
Fotos

Walter Oberbramberger

Fachplaner

Petz zt-gmbh
Engelmann Energiesysteme GmbH

Das 1909 errichtete Wohn- und Geschäftshaus in der Wiener Innenstadt, das zwischen dem Albertina Museum und dem Neuem Markt liegt, ist seit dem Jahre 2006 das Zuhause der Tiroler Landesbank Hypo Tirol. Die Wiener Geschäftsstelle ist jedoch keine gewöhnliche Bank. Sie betreut im Bereich des Private Bankings hauptsächlich Firmenkunden aus der Immobilienbranche. Eine Bank, die nach dem Umbau von Atelier Fröhlich neu interpretiert wurde.

Während das Erdgeschoss als durchlässiges Entrée die vorbei spazierenden Fußgänger in den Innenraum blicken lässt, lädt die zentral platzierte, sechs Meter lange Terrazzo-Theke mit Barista-Charakter die Kunden zum Verweilen und Kommunizieren ein.

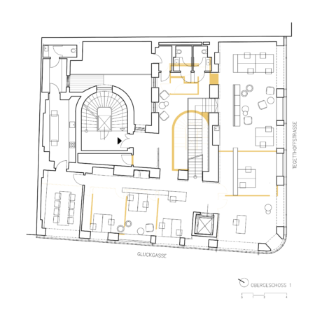
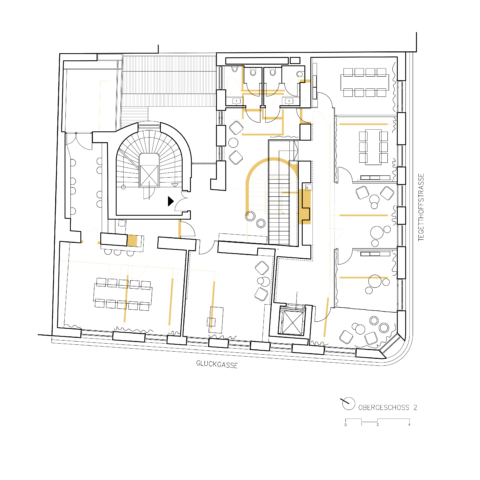
Das 1. Obergeschoss, welches das Großraumbüro beheimatet, eröffnet den strukturierten, jedoch auch flexiblen Übergang zum 2. Obergeschoss, die Ebene der Besprechungsräumlichkeiten. Mit dieser Konstellation wird ein gleichmäßiger Übergang und eine Brücke vom offenen Entrée bis zum diskreten großen Besprechungsraum geschaffen.

Grundriss des Erdgeschosses eines Gebäudes an der Ecke Gluckgasse und Tegetthoffstraße. Der Plan zeigt Eingänge, eine zentrale Treppe, verschiedene Räume sowie eine offene Fläche mit Sitzgelegenheiten und Tischen.
Historic corner building in Vienna with modern glass façade on the ground floor, home of HYPO Tirol Bank, elegant architecture in city center.
  • Machbarkeitsstudie
  • Entwurfsplanung
  • Einreichplanung
  • Ausführungs- und Detailplanung
  • Inneneinrichtung
  • Ausschreibung, Angebot, Vergabe
  • Begleitung der Bauausführung
Moderner Büroflur mit Holzlamellenwand und großen Zahlen zur Geschossmarkierung, Glaswänden, heller Deckenbeleuchtung sowie einer kleinen Teeküche/Servicestation.
Modernes Großraumbüro mit Holzlamellenwand, offenen Arbeitsplätzen und klarer architektonischer Struktur für flexible Teamarbeit.

Das Angebot der Bank ist auf eine maximale Nutzungsvielfalt ausgelegt. Ermöglicht wurden daher unterschiedlichste Besprechungs- und Kundenbetreuungskonstellationen in großen oder kleinen Gruppen sowie geschlossenen als auch offenen Raumsituationen. So wurden auf einer Grundfläche von insgesamt ca. 1.100 m2 23 Arbeitsplätze geschaffen, die sowohl für kurzzeitiges als auch für ganztägiges Arbeiten verwendet werden können. Die starre Struktur des Altbestandes wurde abgebrochen, Decken wurden geöffnet und Wände entfernt. Eine neue Stahltreppe als offenes Bindeglied bildet gleichzeitig Raum für Vernissagen und Veranstaltungen.

Bei der Materialauswahl haben wir großen Wert auf Wiener Tradition und Tiroler Ursprung gesetzt. Dabei wurden Terrazzo Aglo, natürliche Schurwolle, sowie ein gebeiztes Eichenholz als prägende Elemente verwendet.

Animiertes GIF einer axonometrischen Darstellung eines Gebäudes. Die einzelnen Stockwerke bauen sich nacheinander von unten nach oben auf und zeigen die innere Raumaufteilung mit Wänden, Türen und Fensteröffnungen.
Holzlamellenwand mit goldener Kontur der Tiroler Bergkette und blauen Einbauschränken – modernes Interior Design der HYPO Tirol.
Minimalistischer Wartebereich mit Holzlamellenwand, integrierter Sitzbank in Dunkelblau und modernen Pendelleuchten im klaren Design.
Moderne Garderobe mit Holzbank, runden Wandhaken, Spiegel und Design-Elementen aus Glas und Holz – funktionale Architektur mit Stil.

Der große Besprechungsraum im 2. Obergeschoß dient gleichzeitig als Veranstaltungsbereich. Dieser wurde mit einer Bar und durch Vergrößerung des Bestands mit einer großzügigen Terrasse erweitert. Über das Dach der Kapuzinergruft öffnet sich der Blick zum neu sanierten Neuen Markt und schafft dadurch eine neue Verbindung zwischen Innen- und Außenraum.

Durchlässige Räume schaffen Transparenz und laden dazu ein, sich zu begegnen und zu vernetzen, während hochwertige Schallmaßnahmen und flexible Raumsysteme eine bestmögliche Diskretion zwischen Kunden und Finanzdienstleister ermöglichen. Diese diskrete Transparenz ist das aufbauende Konzept der Bankfiliale.

Eleganter Besprechungsraum mit kreisförmiger Lichtinstallation, minimalistischen Möbeln und heller Holzarchitektur für moderne Arbeitswelten.
Helles Bank-Interior mit Glaswänden, modernen Loungemöbeln und flexiblen Beratungsbereichen für eine offene, transparente Atmosphäre.
Moderner Besprechungsraum mit hellem Konferenztisch, Holzverkleidung, Designleuchten und Bildschirm für Präsentationen im Private Banking.

Für ein hohes Maß an Komfort sorgen maßgeschneiderte Lösungen im Innenausbau. Die Mittelmauer sowie Teile der Trennwände wurden mit Eichenlamellen belegt und mit schallabsorbierendem Filz beschichtet, der als akustisch wirksamer Raumfilter die offenen Raumstrukturen leben lässt.

Minimalistischer Flurbereich mit Holzlamellenwand, integrierter Teeküche und Glasdetails – moderne Architektur in klarer Linienführung.
Helles Lounge-Areal mit Glaswand, Designleuchten, Sitzpoufs und klarer Architektur – moderne Raumgestaltung für Beratung und Entspannung.

In Kooperation mit dem Grafikbüro „And Then Jupiter“ wurde auch in den kleinen Details auf hohe Qualität gesetzt. Eine vergoldete 360-Grad-Kontur der Tiroler Bergkette aus Sicht der Hypo Tirol Zentrale in Innsbruck bildet einen stilistischen Rundblick und schafft eine dezente Brücke zwischen Innsbruck und Wien. Die individuell gestaltetet Signaletik bringen Interieur und die Geisteshaltung der Bank als Konzept noch näher zueinander.

Empfangsbereich eines Bankgebäudes mit vertikaler Holzlamellenwand, großflächigen Geschosszahlen in Gelb und Schwarz sowie eine vergoldete 360-Grad-Kontur der Tiroler Bergkette.
Detail einer modernen Treppe mit Holzhandlauf und integrierter LED-Beleuchtung, kombiniert mit vertikaler Lamellenwand.
Detailaufnahme einer Holzlamellenwand mit goldener Liniengrafik der Tiroler Bergkette – architektonisches Gestaltungselement für HYPO Tirol.
Moderne Treppenanlage mit Holzverkleidung, integrierter Beleuchtung und klarer Linienführung – minimalistisches Architekturelement im Innenraum.
Detailaufnahme eines Holzhandlaufs mit integrierter Beleuchtung an einer modernen Treppe mit vertikaler Lamellenverkleidung.
Sitznische mit blauer Polsterung in einer Holzlamellenwand, integriert in einen modernen Büroflur mit hellem Teppichboden und Deckenbeleuchtung.