En
Empfangsbereich mit weißem Tresen, minimalistischen Hängependelleuchten und Parkettboden.

Umbau und Innenarchitektur einer Ordination

Leichte Medizin

Kunde
Dr. Mayerhofer-Gallenbacher
Zeitraum
2017
Ort
1070 Wien
Kategorien
Öffentliche Bauten
Nutzfläche
144 m²
Fotos

Hanna Haböck

In einer ehemaligen Wohnung eines Wiener Gründerzeithauses entstand im Herzen der Stadt eine moderne Ordination.
Unsere Aufgabe bestand darin, den historischen Wohnungsgrundriss so zu transformieren, dass er die Anforderungen einer zeitgemäß funktionierenden Arztpraxis erfüllt.

Dabei lag der Fokus auf einer klaren Raumorganisation, die sowohl Patienten als auch Ärzten und Assistenten eine intuitive Orientierung ermöglicht. Die Wegeführung wurde optimiert, um effiziente Abläufe im Praxisalltag zu unterstützen, ohne den einladenden Charakter der Räume zu verlieren.

Mit sensiblen Eingriffen in den Bestand und einer sorgfältigen Gestaltung entstand eine Atmosphäre, die gleichermaßen Struktur und Wohlbefinden vermittelt – ein Ort, an dem medizinische Präzision und menschliche Wärme aufeinander treffen.

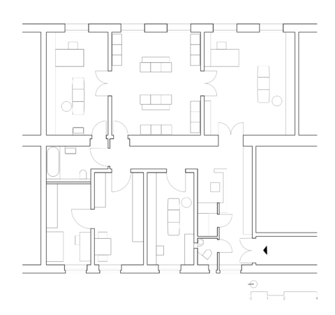
Grundriss der Ordination in einem Wiener Gründerzeithaus, zeigt Raumaufteilung mit Wartebereich, Behandlungszimmern und Empfang.
  • Entwurfsplanung
  • Ausführungs- und Detailplanung
  • Inneneinrichtung
  • Ausschreibung, Angebot, Vergabe
  • Örtliche Bauaufsicht und Dokumentation
Zentraler Wartebereich mit zwei weißen Empfangstheken, ringförmiger Deckenleuchte und Sitzgelegenheiten.
Blick vom Eingang in das Behandlungszimmer mit weißen Wänden, Parkettboden und minimalistischen Stühlen.

Bei der Innenarchitektur legten wir besonderen Wert darauf, dass maßgeschneiderte Tischlerelemente den Raum prägend gestalten und zugleich den Ablauf des Praxisalltags vereinfachen.
Der großzügige Warteraum wurde mit zwei schlichten, raumdefinierenden Elementen strukturiert, die jeweils einseitig mit Regalen ausgestattet sind.

Auf der einen Seite entstand so ein Kinderbereich mit Spielen und Bildschirm, auf der anderen Seite eine Zone mit Informationsmaterial für Patienten.

Diese Einbauten schaffen nicht nur funktionale Zonen, sondern ermöglichen auch ein intimeres Warten: Trotz der Größe des Raumes bietet die Strukturierung die Möglichkeit, sich zurückzuziehen und ungestört zu bleiben.

Behandlungszimmer mit weißem Behandlungstisch, raumhohen Schränken und indirekter Beleuchtung.
Doctor’s office with white desk, modern chair, and subtle gray wall design.
Türbeschriftung mit der Aufschrift „Behandlungsraum 01“ in minimalistischer Typografie.