En
Ess- und Aufenthaltsbereich mit gelben Stühlen, grüner Wandgestaltung und VIE Ground Handling Branding.

Aufenthaltsraum für Mitarbeiter der Flugzeugabfertigung

Ein Team, eine Mission: gemeinsam, sicher, pünktlich

Kunde
Flughafen Wien AG
Zeitraum
2024 – 2025
Ort
Flughafen Wien
Kategorien
Öffentliche Bauten
Nutzfläche
475m²
Fotos

Atelier Fröhlich

Der ehemalige Aufenthaltsbereich für die Schichtarbeiter der Flugzeugabfertigung am Flughafen Wien bestand aus mehreren kleinen Einzelräumen, die durch eine Mischung aus alten und neuen Möbelstücken wenig Atmosphäre boten. Ziel unserer Planung war es, diesen Bereich in einen zeitgemäßen, offenen Aufenthaltsraum zu verwandeln, der sowohl Rückzugsmöglichkeiten als auch gemeinschaftliche Nutzung in Einklang bringt.

Der neue Aufenthaltsraum wurde so gestaltet, dass er mehrschichtig genutzt werden kann: als Ort zum Verweilen, Ausruhen und Essen, aber auch als Treffpunkt, der den Teamgeist der Ground Handling Crew stärkt. Das Leitmotiv „Hand in Hand“ prägte sowohl den Entwurfsprozess als auch die Zusammenarbeit mit dem Team vor Ort.

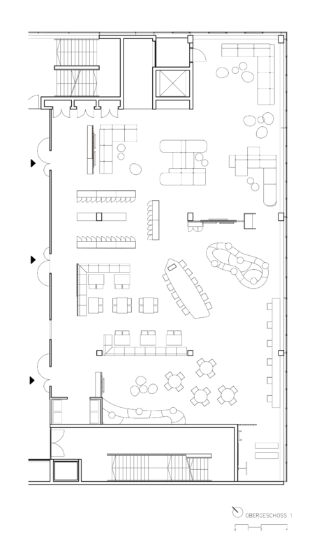
Architektonischer Grundriss des Aufenthaltsraums im Flughafen Wien mit klarer Zonierung in Sport-, Ess- und Ruhebereich für das Handling Center West.
  • Entwurfsplanung
  • Ausführungs- und Detailplanung
  • Inneneinrichtung
  • Begleitung der Bauausführung
FLH W HCW Ruhebereich atelier froehlich
Dining area with yellow chairs, communal tables and green accents – modern architecture for break and team spaces.

Durch den Einsatz von durchlässigen Lamellen erhielt der ehemals zergliederte Grundriss eine klare Struktur, ohne die Offenheit des Raumes zu verlieren. So entstanden Zonen, die trotz Großraumcharakter unterschiedliche Funktionen übernehmen können. Ein Bereich lädt mit einem Tischfußballspiel zu gemeinsamen Aktivitäten ein, während im angrenzenden Fitnessbereich mit Schwerpunkt auf Rückengymnastik künftig auch Workshops zur Arbeitsgesundheit stattfinden können. Ergänzt wird dies durch Sitzstufen, die Raum für Weiterbildungen und Abteilungsveranstaltungen bieten. Für kurze Pausen stehen zudem ein Kaffeeautomat und eine Trinkwassernische zur Verfügung, die den Raum um eine praktische und bequeme Komponente erweitern.

Sportzone mit Sprossenwand, Fitnessgeräten und grünen Wänden – aktiver Pausenbereich im Aufenthaltsraum des Flughafens.
Detailaufnahme von Grünpflanzen, die den Aufenthaltsraum strukturieren und für eine angenehme Atmosphäre sorgen.

Das Ergebnis ist ein vielseitiger Aufenthaltsraum, der die Bedürfnisse der Mitarbeiter in den Vordergrund stellt und gleichzeitig ein starkes Signal für Gemeinschaft und Wertschätzung setzt. Aus den zuvor abgetrennten Einzelräumen entstand ein offener Ort, der zur Erholung, Stärkung und zum Zusammenhalt beiträgt. Im Zuge des Projekts entwickelte sich auch der neue Leitgedanke der Abteilung:

„Ein Team, eine Mission: gemeinsam, sicher, pünktlich.“

Recyclingstation mit drei Trennsystemen, Holzelementen und Begrünung als Teil des nachhaltigen Raumkonzepts.
Moderner Aufenthaltsbereich mit großem Gemeinschaftstisch, gelben Barhockern und schwarzen Pendelleuchten. Im Hintergrund grüne Wandgestaltung mit dem Motto ‚Ein Team, eine Mission: gemeinsam – sicher – pünktlich‘.
Grüne Garderobenwand mit schwarzen Haken, Schutzkleidung und Arbeitshandschuhen – funktionale Ergänzung zum Aufenthaltsbereich.
Grüne Sitzlandschaft mit runden Tischen vor Holzlamellen und Monitoren – modernes Design im Aufenthaltsraum.