En
Schlanke Küchenzeile mit weißer Front und Parkettboden im Fischgrätmuster.

Wohnungsumbau und Innenarchitektur

Farben, die Räume tragen

Kunde
Privat
Zeitraum
2017 – 2018 & 2022 – 2023
Ort
1140 Wien
Kategorien
Private Bauten
Nutzfläche
80m2
Fotos

Anna Fekete & Hanna Haböck

Bei dem Wohnungsumbau begleiteten wir die Bauherrin beim umfassenden Umbau einer Wohnung und schufen durch gezielte Innenarchitektur ein wohnliches, neues Zuhause. Ziel war es, den Bestand sensibel weiterzudenken und mit maßgeschneidertem Interior eine ruhige, klare Atmosphäre entstehen zu lassen.

Die Farbgestaltung orientierte sich an der Palette des österreichischen Porzellanherstellers Lilienporzellan. Die sanften, pastelligen Töne verleihen den Räumen eine leichte und zugleich elegante Stimmung. Möbel und Einbauten wurden so entworfen, dass sie sich selbstverständlich in die vorhandene Architektur einfügen, ohne die Räume zu dominieren.

Ein besonderes Element bildet das neu gesteckte Regalsystem zwischen Wohn- und Arbeitszimmer. Es schafft ein systematisches Gegenüber, das die beiden Räume strukturiert, Klarheit vermittelt und gleichzeitig deren Großzügigkeit unterstreicht.

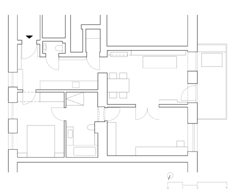
Grundriss einer Wohnung mit klarer Raumaufteilung in Wohn-, Schlaf- und Nassbereiche.
  • Vorentwurfsplanung
  • Entwurfsplanung
  • Ausführungs- und Detailplanung 
  • Inneneinrichtung
  • Örtliche Bauaufsicht und Dokumentation
WGS W Ansicht Wohnzimmer1 Foto atelier froehlich
WGS W Ansicht Arbeitszimmer Foto atelier froehlich

Das Zusammenspiel von feiner Farbigkeit, integrierten Möbeln und sorgfältig gesetzten Details führte zu einer wohnlichen Gesamtheit, die Funktionalität und Atmosphäre gleichermaßen betont – ein Zuhause, das Leichtigkeit, Behaglichkeit und Identität ausstrahlt.

Offenes Holzregal mit Büchern und Pflanzen, vereint Funktionalität und Wohnlichkeit in einem klaren, zeitlosen Design.
Maßgefertigtes Holzregal mit blauen Elementen, kombiniert Stauraum und offene Fächer – modernes, minimalistisches Design für Wohnräume.
Detailansicht des Regals mit verstecktem Stauraum und Klappe – clevere Aufbewahrungslösung aus hochwertigem Holz.
Helles Zimmer mit Fischgrätparkett, weißen Wänden und einem rosa Kleid an der Tür.
Detailaufnahme einer Sitzbank mit blauer Polsterauflage und Lederriemen.
Sitzbank und Stauraummöbel unter einem Fenster, dekoriert mit runden Wandhaken.
Schlafzimmer mit hellem Holzrahmenbett, blauen Vorhängen und hellem Parkettboden.
Nahaufnahme des Badezimmers mit Badewanne, Spiegelwand und modernen Leuchten.
Badezimmer mit Badewanne, großem Spiegel und weißem Waschtisch, minimalistisches Design.