En
Schlafzimmerausbau Wien: modernes Bett mit integrierten Möbeln, Holzdetails und minimalistischer Gestaltung

Innenarchitektur

Dachboden wird Rückzugsort

Kunde
Privat
Zeitraum
2021 – 2022
Ort
1160 Wien
Kategorien
Private Bauten
Nutzfläche
45m²
Fotos

Walter Oberbramberger

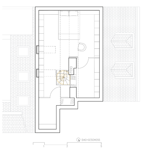
In diesem Projekt wurde ein ehemaliger Dachboden in einen funktionalen und zugleich atmosphärischen Schlafraum mit Garderobe verwandelt.

Der bestehende Stiegenaufgang wurde erweitert und neu in die Gesamtgestaltung integriert. Durch gezielt eingesetzte Möbelelemente erhielt der Raum eine klare Struktur: Flächen unter der Dachschräge, die zuvor kaum nutzbar waren, wurden durch maßgefertigte Möbelverbauten in wertvollen Stauraum verwandelt. Eine großzügige Garderobe trennt den Raum und sorgt für eine klare Zonierung zwischen Ankommen und Rückzug.

MBS W Grundriss atelier froehlich
  • Entwurfsplanung
  • Ausführungs- und Detailplanung
  • Inneneinrichtung
  • Ausschreibung, Angebot, Vergabe
  • Örtliche Bauaufsicht und Dokumentation
Schlafzimmerausbau Wien: modernes Bett mit integrierten Möbeln, Holzdetails und minimalistischer Gestaltung
Schlafzimmer im Dachgeschoss Wien mit Holzvertäfelung, integrierten Nachttischen und minimalistischen Details

Das individuell gestaltete Schlafbereich-Ensemble mit Bett und Nachttischen aus Eichefurnier bildet das Herzstück des neuen Raumes. Mit seiner markanten, warmen Ausstrahlung setzt es einen bewussten Akzent und schafft eine einladende Atmosphäre.

Dachgeschossausbau mit großem Dachflächenfenster, maßgefertigten Heizkörperverkleidungen und weißen Einbauten
Dachgeschossausbau mit maßgefertigten weißen Schrankfronten unter der Dachschräge, minimalistische Linienführung
Moderner Dachausbau in Wien mit Parkettboden im Fischgrätmuster, grauen Polsterstühlen und maßgefertigten weißen Einbauten

Durch die architektonische Neustrukturierung, den gezielten Einsatz von Möbelelementen und die Materialwahl entstand ein intimer Rückzugsort, der Funktionalität und Wohnqualität auf besondere Weise verbindet.

Offene Treppe mit weißem Geländer, Dachschrägenfenster und modernen Hängelampen im Dachgeschoss Wien
Dachgeschossausbau Wien mit Dachflächenfenster, minimalistischen Einbaumöbeln und klaren Linien, lichtdurchflutetes Interieur
Detail view of attic conversion Vienna: custom cabinet fronts with precise integrated handles